Rif: CASILINA
ROMA
ROMA - zona Tor Tre Teste - Torre Maura
**Locale in Vendita - Via Casilina**
Scopri un'opportunità imperdibile!
Questo locale commerciale in vendita si trova in una posizione strategica, a pochi passi dal Policlinico Casilino e dalla fermata Metro C di Torre Maura.
Con una superficie di circa 83 mq calpestabili, il negozio offre un'ottima visibilità grazie alla sua vetrina fronte strada.
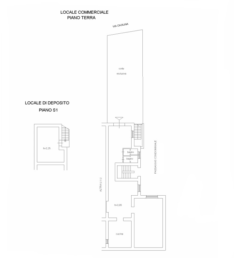
La composizione interna include un ampio spazio per il negozio, un retro negozio funzionale, una cucina e due bagni, rendendolo ideale per diverse attività commerciali. Inoltre, la corte esclusiva antistante offre uno spazio aggiuntivo perfetto per accogliere i clienti o per eventi all'aperto.
Il locale è dotato di serranda manuale e un soppalco, che aumenta la versatilità dello spazio.
In aggiunta, è inclusa una cantina al piano seminterrato, perfetta per lo stoccaggio.
Non perdere l'occasione di investire in un locale che combina posizione, spazio e potenzialità. Contattaci per maggiori informazioni e per organizzare una visita!
Le presenti informazioni e planimetrie sono meramente informative e non costituiscono elementi contrattuali.
PM IMMOBILIARE
Via dei Colombi n. 34 Roma
331.1972514
06.69270129
Scopri un'opportunità imperdibile!
Questo locale commerciale in vendita si trova in una posizione strategica, a pochi passi dal Policlinico Casilino e dalla fermata Metro C di Torre Maura.
Con una superficie di circa 83 mq calpestabili, il negozio offre un'ottima visibilità grazie alla sua vetrina fronte strada.
La composizione interna include un ampio spazio per il negozio, un retro negozio funzionale, una cucina e due bagni, rendendolo ideale per diverse attività commerciali. Inoltre, la corte esclusiva antistante offre uno spazio aggiuntivo perfetto per accogliere i clienti o per eventi all'aperto.
Il locale è dotato di serranda manuale e un soppalco, che aumenta la versatilità dello spazio.
In aggiunta, è inclusa una cantina al piano seminterrato, perfetta per lo stoccaggio.
Non perdere l'occasione di investire in un locale che combina posizione, spazio e potenzialità. Contattaci per maggiori informazioni e per organizzare una visita!
Le presenti informazioni e planimetrie sono meramente informative e non costituiscono elementi contrattuali.
PM IMMOBILIARE
Via dei Colombi n. 34 Roma
331.1972514
06.69270129
Consistenze
Descrizione | Superficie | Sup. comm. |
---|---|---|
Principali | ||
Negozio - piano terra | 122 Mq | 122 Mqc |
Totale | 122 Mqc |