Rif: MACCHIA TERRA
ROMA
ROMA - zona Castelverde
**Appartamento in Vendita a Villaggio Prenestino**
Scopri il tuo nuovo rifugio nel cuore di Villaggio Prenestino, in Via Macchiagodena, a pochi passi da bar, supermercati e l'Istituto Comprensivo “Villaggio Prenestino”, la posizione è perfetta per famiglie e professionisti.
Questo appartamento al piano terra offre un contesto riservato e tranquillo, ideale per chi cerca un angolo di serenità senza rinunciare alla comodità dei servizi.
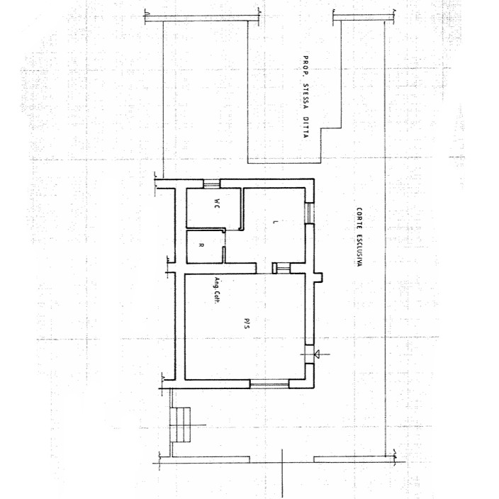
L'immobile si compone, attualmente, di due grandi ambienti, di cui uno con camino, un grande bagno finestrato e un pratico ripostiglio.
Gli infissi sono in alluminio con doppio vetro, mentre le persiane di sicurezza offrono tranquillità e protezione.
La proprietà include una corte esclusiva di pertinenza, perfetta per godere di momenti all'aperto, e un ampio posto auto coperto per la massima comodità. Il laboratorio di circa 87 mq con corte carrabile antistante e annesso terreno, in parte piantumato a ulivi, rappresenta, inoltre, un'opportunità unica per chi desidera uno spazio versatile da utilizzare come studio o magazzino o per svolgere attività professionali.
Non perdere l'occasione di visitare questo appartamento in buono stato.
Possibilità di acquistare anche il piano superiore dell'edificio.
Contattaci per maggiori informazioni e per organizzare una visita!
Le presenti informazioni e planimetrie sono meramente informative e non costituiscono elementi contrattuali.
PM IMMOBILIARE
Via dei Colombi n. 34 Roma
331.1972514
06.69270129
Scopri il tuo nuovo rifugio nel cuore di Villaggio Prenestino, in Via Macchiagodena, a pochi passi da bar, supermercati e l'Istituto Comprensivo “Villaggio Prenestino”, la posizione è perfetta per famiglie e professionisti.
Questo appartamento al piano terra offre un contesto riservato e tranquillo, ideale per chi cerca un angolo di serenità senza rinunciare alla comodità dei servizi.
L'immobile si compone, attualmente, di due grandi ambienti, di cui uno con camino, un grande bagno finestrato e un pratico ripostiglio.
Gli infissi sono in alluminio con doppio vetro, mentre le persiane di sicurezza offrono tranquillità e protezione.
La proprietà include una corte esclusiva di pertinenza, perfetta per godere di momenti all'aperto, e un ampio posto auto coperto per la massima comodità. Il laboratorio di circa 87 mq con corte carrabile antistante e annesso terreno, in parte piantumato a ulivi, rappresenta, inoltre, un'opportunità unica per chi desidera uno spazio versatile da utilizzare come studio o magazzino o per svolgere attività professionali.
Non perdere l'occasione di visitare questo appartamento in buono stato.
Possibilità di acquistare anche il piano superiore dell'edificio.
Contattaci per maggiori informazioni e per organizzare una visita!
Le presenti informazioni e planimetrie sono meramente informative e non costituiscono elementi contrattuali.
PM IMMOBILIARE
Via dei Colombi n. 34 Roma
331.1972514
06.69270129
Consistenze
| Descrizione | Superficie | Sup. comm. |
|---|---|---|
| Principali | ||
| Immobile - piano terra | 90 Mq | 90 Mqc |
| Accessorie | ||
| Posto auto | 36 Mq | 11 Mqc |
| Altro - piano terra | 87 Mq | 9 Mqc |
| Totale | 110 Mqc | |








