Rif: ASTORE
ROMA
ROMA - zona Tor Tre Teste - Torre Maura
**Monolocale in Vendita - Un'Occasione da Non Perdere!**
Scopri questo affascinante monolocale situato al primo piano di una palazzina in tinta e cortina, in ottime condizioni.
Questo immobile, da ristrutturare, offre un grande potenziale per chi desidera personalizzarlo secondo il proprio gusto.
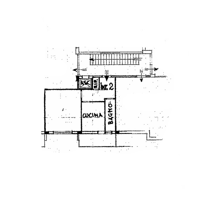
Con una superficie commerciale di 45 mq, l'appartamento è composto da un ingresso accogliente, un bagno con finestra, un pratico ripostiglio, una cucina funzionale e una camera da letto luminosa. Il balcone è perfetto per godere di momenti di relax all'aria aperta.
Dotato di ascensore e riscaldamento autonomo a gas naturale, questo monolocale è ideale per chi cerca una soluzione comoda e versatile.
Situato in una zona tranquilla, ma ben collegata, rappresenta un'ottima opportunità sia per giovani coppie che per investitori.
Non lasciarti sfuggire questa occasione! Contattaci per maggiori informazioni e per organizzare una visita.
Le presenti informazioni e planimetrie sono meramente informative e non costituiscono elementi contrattuali.
PM IMMOBILIARE
Via dei Colombi n. 34, Roma
0669270129
3311972514
Scopri questo affascinante monolocale situato al primo piano di una palazzina in tinta e cortina, in ottime condizioni.
Questo immobile, da ristrutturare, offre un grande potenziale per chi desidera personalizzarlo secondo il proprio gusto.
Con una superficie commerciale di 45 mq, l'appartamento è composto da un ingresso accogliente, un bagno con finestra, un pratico ripostiglio, una cucina funzionale e una camera da letto luminosa. Il balcone è perfetto per godere di momenti di relax all'aria aperta.
Dotato di ascensore e riscaldamento autonomo a gas naturale, questo monolocale è ideale per chi cerca una soluzione comoda e versatile.
Situato in una zona tranquilla, ma ben collegata, rappresenta un'ottima opportunità sia per giovani coppie che per investitori.
Non lasciarti sfuggire questa occasione! Contattaci per maggiori informazioni e per organizzare una visita.
Le presenti informazioni e planimetrie sono meramente informative e non costituiscono elementi contrattuali.
PM IMMOBILIARE
Via dei Colombi n. 34, Roma
0669270129
3311972514
Consistenze
| Descrizione | Superficie | Sup. comm. |
|---|---|---|
| Principali | ||
| Immobile - 1° piano | 45 Mq | 45 Mqc |
| Totale | 45 Mqc | |








