Rif: MACCHIA PRIMO
ROMA
ROMA - zona Castelverde
**Appartamento in Vendita a Villaggio Prenestino**
Scopri il tuo nuovo rifugio nel cuore di Villaggio Prenestino, in una posizione tranquilla e riservata.
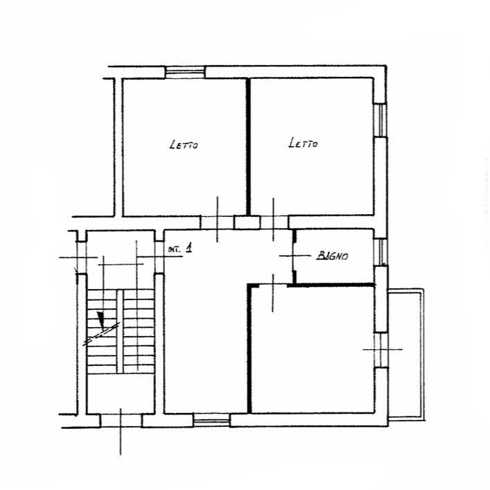
Questo splendido appartamento al primo piano di 90 mq offre un ambiente ideale per chi cerca comfort e praticità. Con un ingresso accogliente, una cucina spaziosa e due ampie camere da letto, ogni angolo è pensato per garantire il massimo del relax.
Il bagno è funzionale, mentre il balcone offre spazio per godersi l'aria aperta.
Gli infissi in alluminio con doppio vetro e le persiane garantiscono sicurezza.
Situato in una zona strategica, l'appartamento è vicino a bar, supermercati e all'Istituto Comprensivo “Villaggio Prenestino”, rendendolo ideale per famiglie.
Inoltre, la presenza di un'ampia soffitta al piano secondo offre ulteriore spazio per riporre ciò che desideri.
Non perdere l'occasione di visitare questo immobile!
Possibilità di acquistare il pian terreno con annessa corte, posto auto e laboratorio.
Le presenti informazioni e planimetrie sono meramente informative e non costituiscono elementi contrattuali.
PM IMMOBILIARE
Via dei Colombi n. 34 Roma
331.1972514
06.69270129
Scopri il tuo nuovo rifugio nel cuore di Villaggio Prenestino, in una posizione tranquilla e riservata.
Questo splendido appartamento al primo piano di 90 mq offre un ambiente ideale per chi cerca comfort e praticità. Con un ingresso accogliente, una cucina spaziosa e due ampie camere da letto, ogni angolo è pensato per garantire il massimo del relax.
Il bagno è funzionale, mentre il balcone offre spazio per godersi l'aria aperta.
Gli infissi in alluminio con doppio vetro e le persiane garantiscono sicurezza.
Situato in una zona strategica, l'appartamento è vicino a bar, supermercati e all'Istituto Comprensivo “Villaggio Prenestino”, rendendolo ideale per famiglie.
Inoltre, la presenza di un'ampia soffitta al piano secondo offre ulteriore spazio per riporre ciò che desideri.
Non perdere l'occasione di visitare questo immobile!
Possibilità di acquistare il pian terreno con annessa corte, posto auto e laboratorio.
Le presenti informazioni e planimetrie sono meramente informative e non costituiscono elementi contrattuali.
PM IMMOBILIARE
Via dei Colombi n. 34 Roma
331.1972514
06.69270129
Consistenze
| Descrizione | Superficie | Sup. comm. |
|---|---|---|
| Principali | ||
| Immobile - 1° piano | 90 Mq | 90 Mqc |
| Accessorie | ||
| Soffitta - 2° piano | 95 Mq | 48 Mqc |
| Totale | 138 Mqc | |








